Description
-
Description:
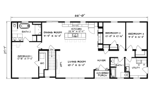
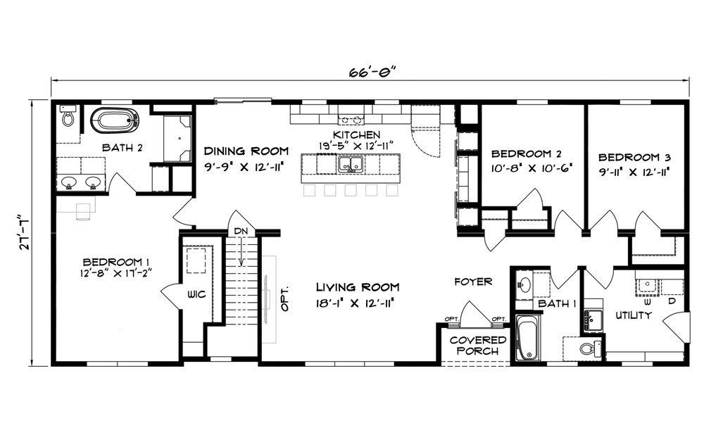
The Bentonville is a beautifully designed 3-bedroom, 2 full bath home that offers the perfect blend of comfort, functionality, and style.
A spacious kitchen island serves as a central gathering place, making food preparation and entertaining with family or friends easy and enjoyable. The private Master Bedroom Ensuite adds comfort and convenience, creating a relaxing retreat within the home.
A walk-in closet in the master bedroom provides ample storage space for clothing and personal items, while the abundance of natural light throughout the home creates a bright, warm, and welcoming atmosphere.
With its attractive design, thoughtful layout, and easy customization options, the Bentonville is built to fit a variety of lifestyles while giving homeowners the opportunity to make it their own.
Easy customizations are available for this home.
Call us today about the Bentonville!
Show all description
Building Details
- Floor covering: Carpet, Laminate
- Exterior material: Vinyl Siding
- Roof: Shingle


